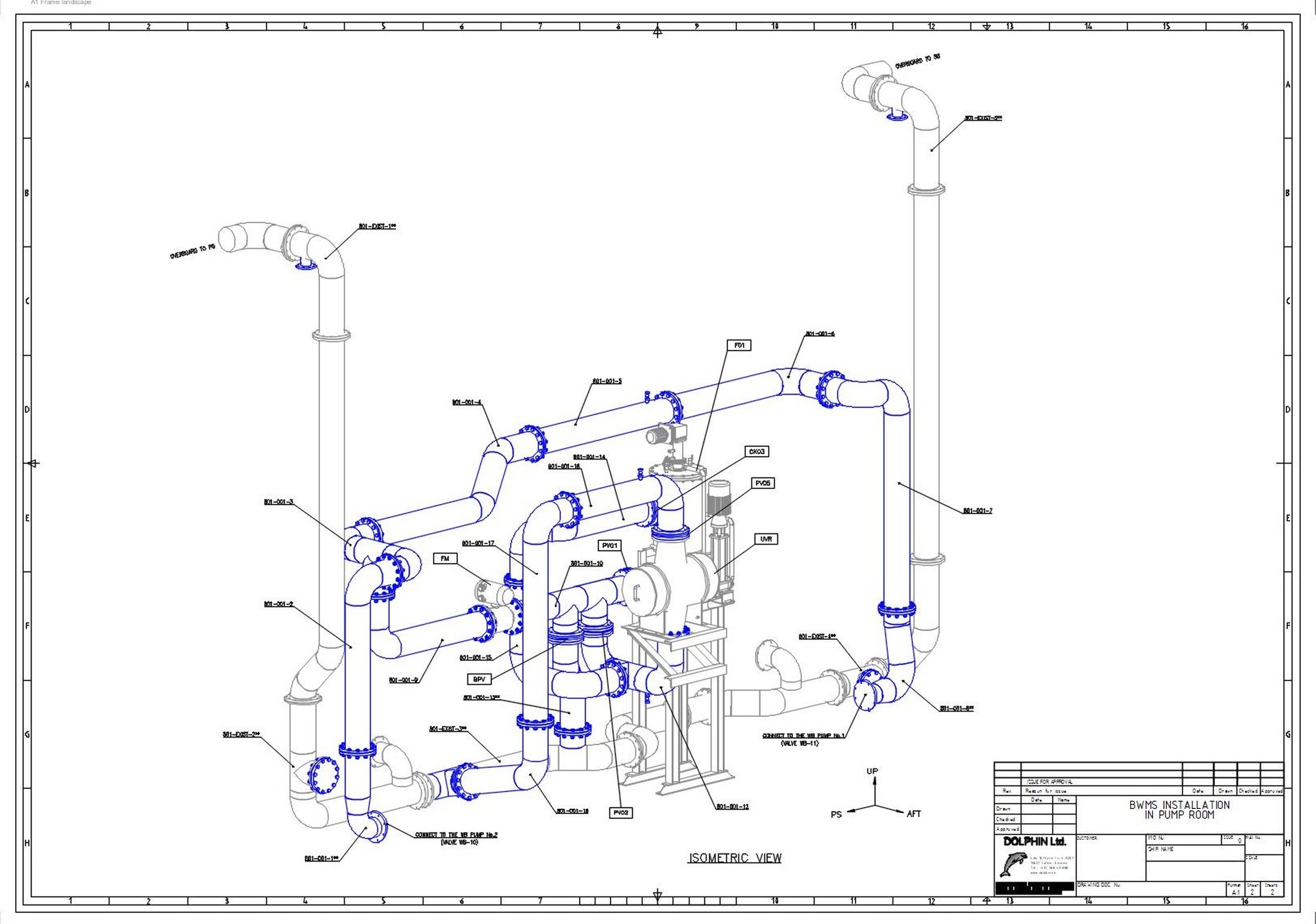
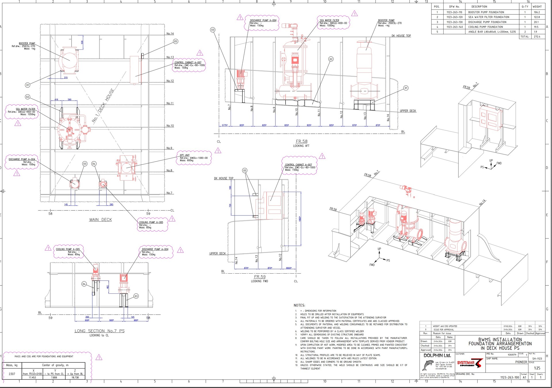
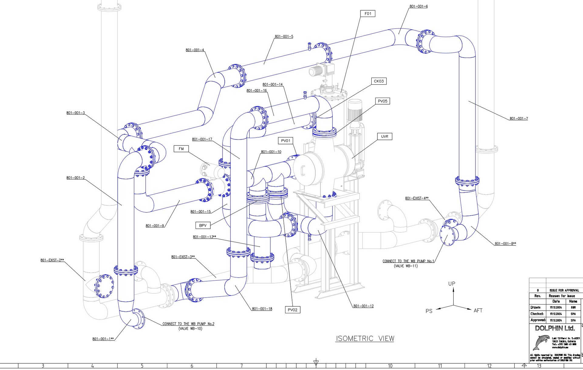
All types of Design documentation

All types of Design documentation for construction and any modification/conversion of Ship’s Hull and Ship’s Systems

Comprehensive development of technical documentation for ship construction, conversion, and modernization — from concept to detailed design.